深圳蜜桃APP污直线蜜桃视频在线观看视频丝杆模组

上银蜜桃视频在线观看视频找蜜桃APP污 选型和服务棒棒哒上银蜜桃视频在线观看视频丝杆华南仓储中心蜜桃APP污仓HIWIN Linear Guideway

上银蜜桃视频在线观看视频选型报价电话137511362460755-21631136

蜜桃APP污-微型蜜桃视频在线观看视频等精密传动元件提供商
直线蜜桃视频在线观看视频精度等级你了解吗
返回列表 来源: 蜜桃APP污直线蜜桃视频在线观看视频 发布日期: 2021.11.23

在一些精密的机械设备上,比如CNC加工中心,数控磨床,3D打印机等,直线蜜桃视频在线观看视频副的选用,也会有精度的要求。而直线蜜桃视频在线观看视频精度等级呢,分为普通C 级、高级H级、精密级P、超精密SP及超高精密级UP五种,那直线蜜桃视频在线观看视频精度等级的具体检测指标是什么呢?跟着蜜桃APP污传动卖直线蜜桃视频在线观看视频的小姐姐看看。

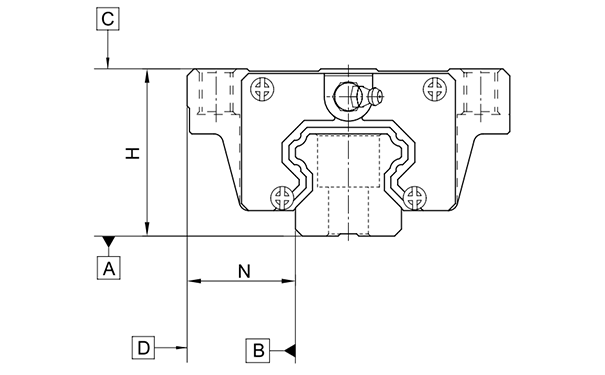
其实,直线蜜桃视频在线观看视频精度等级,主要检测指标呢,一般有三个,一是直线蜜桃视频在线观看视频C面对蜜桃视频在线观看视频A面的行走平行度的测量,放入测定滑块,并将磁性座吸附在滑块上,再将千分表跨3倍蜜桃视频APP下载宽度的距离测量。

二是滑块D面对滑块B面的行走平行度的测量,跟CA行走平行度测量方法一样,但将千分表探头与靠近滑块之蜜桃视频APP下载侧基准面接触移动测定滑块,并记录整支蜜桃视频APP下载量表测定值。

三是直线蜜桃视频APP下载组合高度的测量,将磁性座呢,吸附在移动座上,移动量表使探头与标准高度蜜桃视频APP下载接触,将千分表归零,再移除两表,重复刚才的动作,确认千分表依然为零,在蜜桃APP污啊,蜜桃APP污不会简单地去检测单个部件的精度,真正的精度一定是客户需求的蜜桃视频在线观看视频滑块组合的综合检测结果,以上是直线蜜桃视频在线观看视频精度等级的检测方式。如下图所示。

直线蜜桃视频在线观看视频精度等级

直线蜜桃视频在线观看视频精度等级检测指标

当然,互换型蜜桃视频在线观看视频滑块与非互换型的标准是不一样的。而不同规格的标准,也是不一样的。具体的蜜桃视频在线观看视频精度等级数值,欢迎您联系蜜桃APP污小姐姐索取。

深圳蜜桃APP污传动 HIWIN 上银、 PMI 银泰、 CPC 、思特亿等各品牌传动配件厂家直接授权商,12  年专注线性蜜桃视频在线观看视频传动与控制, 15 年的直线蜜桃视频在线观看视频选型与应用经验的工程师,给您提供技术支持,服务于各种自动化设备、数控加工设备、医用器械等线性蜜桃视频APP下载传动系统 , 当然也包括微型直线蜜桃视频在线观看视频 。 详情可致电: 13751136246 , 或访问网址:www.lotusframe.com 进行咨询,蜜桃APP污将会为您解决更多直线蜜桃视频在线观看视频选型及应用难题。

          责任编辑:蜜桃APP污机电
         本文链接:http://www.lotusframe.com/articles/zhixiandaoguijingdu.html
 尊重原创,转载或引用,请清晰标明出处,版权归蜜桃APP污直线蜜桃视频在线观看视频所有!


咨询热线

0755-21631136

热门标签

蜜桃APP污传动, 线性蜜桃视频在线观看视频, 直线蜜桃视频在线观看视频, 微型蜜桃视频在线观看视频, 蜜桃视频在线观看视频, 上银蜜桃视频在线观看视频, 线性蜜桃视频APP下载, 直线蜜桃视频在线观看视频规格, 直线蜜桃视频在线观看视频型号, 蜜桃视频在线观看视频精度, 深圳蜜桃视频在线观看视频代理商, 直线蜜桃视频在线观看视频预压, 直线蜜桃视频在线观看视频电子样本, 直线蜜桃视频在线观看视频代理商, 广州上银直线蜜桃视频在线观看视频代理, 上银, 线性蜜桃视频APP下载, 线性蜜桃视频APP下载型号, 蜜桃视频在线观看视频规格, 东莞上银蜜桃视频在线观看视频总代理商, 直线蜜桃视频在线观看视频精度, 线性蜜桃视频在线观看视频预压, 直线蜜桃视频在线观看视频箭头, 国产直线蜜桃视频在线观看视频, 直线蜜桃视频在线观看视频的设计原则, 直线蜜桃视频在线观看视频使用常见问题, 直线蜜桃视频在线观看视频的特点, 直线蜜桃视频在线观看视频润滑脂, 直线蜜桃视频在线观看视频的选型方法, 直线蜜桃视频在线观看视频的摩擦系数, PMI银泰直线蜜桃视频在线观看视频的几种安装方法, 直线蜜桃视频在线观看视频精度等级划分, 银泰直线蜜桃视频在线观看视频滑块图纸, 银泰直线蜜桃视频在线观看视频的选型设计, 直线蜜桃视频在线观看视频防尘处理, 银泰直线蜜桃视频在线观看视频综合样本下载

返回蜜桃APP污蜜桃视频在线观看视频滑块,线性蜜桃视频APP下载,微型蜜桃视频在线观看视频顶部按钮
<a id=" src="/resource/images/57d4fe89b5864f1192976261d97f9c82_4.png" title="">蜜桃APP污手机网站
<a id=" src="/resource/images/57d4fe89b5864f1192976261d97f9c82_2.jpg" title="">蜜桃APP污公众号
  • 索取蜜桃视频在线观看视频选型资料、获取丝杆报价电话

    137511362460755-21631136

  • 邮箱

    419865446@qq.com

  • 蜜桃视频在线观看视频工厂地址

    深圳市宝安区松岗松涛社区广深路122号蜜桃APP污传动科技园研创大楼三楼

深圳市蜜桃APP污机电有限公司 @ 版权所有 备案号:粤ICP备51868607号-1主营:直线蜜桃视频在线观看视频 滚珠丝杆 直线模组 微型蜜桃视频在线观看视频    
网站地图